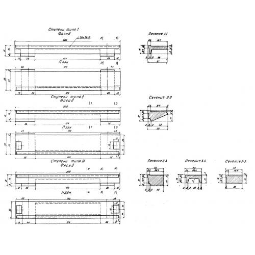
Ступень
Характеристики изделия:
| Параметр | Значение |
|---|---|
| длина | 2000 мм |
| ширина | 390 мм |
| высота | 210 мм |
| масса | 175 кг |
| нормативный документ | ТП 501-166 |
Цена:
Рассчитать стоимостьСтупень - Ступени железобетонные по Типовому проекту ТП 501-166.
| Параметр | Значение |
|---|---|
| длина | 2000 мм |
| ширина | 390 мм |
| высота | 210 мм |
| масса | 175 кг |
| нормативный документ | ТП 501-166 |
Ступень - Ступени железобетонные по Типовому проекту ТП 501-166.
