ПСЛ 24

Чертеж изделия:
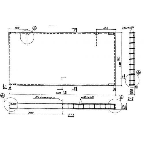
Характеристики изделия:
ПараметрЗначение
длина5980 мм
ширина2985 мм
высота240 мм
масса6200 кг
нормативный документСерия СТ 02-33

ПСЛ 24 Панели наружные стеновые из легкого бетона Серия СТ 02-33.