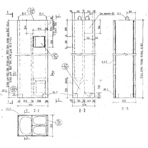
ВБ 2-33 вентблоки

Чертеж изделия:
Характеристики изделия:
ПараметрЗначение
длина550 мм
ширина400 мм
высота3280 мм
масса750 кг
нормативный документСерия Б1.134.1-7

ВБ 2-33 Вентблоки по Серии Б1.134.1-7.