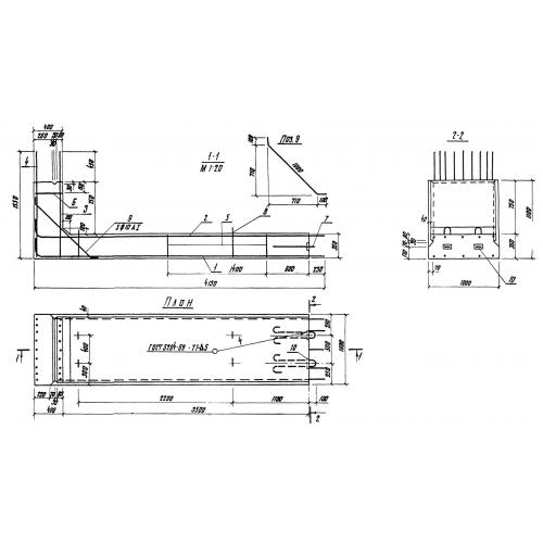
СБ-35
Характеристики изделия:
| Параметр | Значение |
|---|---|
| длина | 1000 мм |
| ширина | 1550 мм |
| высота | 4130 мм |
| масса | 4000 кг |
| нормативный документ | Серия 3.820.1-29 |
Цена:
Рассчитать стоимостьСБ-35 Стеновые блоки по Серии 3.820.1-29.
| Параметр | Значение |
|---|---|
| длина | 1000 мм |
| ширина | 1550 мм |
| высота | 4130 мм |
| масса | 4000 кг |
| нормативный документ | Серия 3.820.1-29 |
СБ-35 Стеновые блоки по Серии 3.820.1-29.
