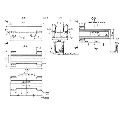
ЖС

Чертеж изделия:
Характеристики изделия:
ПараметрЗначение
длина1000 мм
ширина620 мм
высота250 мм
масса130 кг
нормативный документСерия 3.602.1-1

ЖС Желоба станционные по Серии 3.602.1-1.