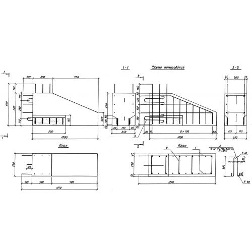
БС 10

Чертеж изделия:
Характеристики изделия:
ПараметрЗначение
длина1000 мм
ширина350 мм
высота500 мм
вес350 кг
серия3.503.1-109.93

БС 10 Блоки стенок по серии 3.503.1-109.93.