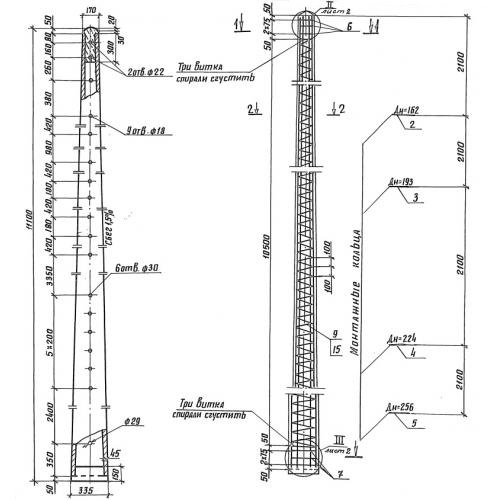
С 11.1

Чертеж изделия:
Характеристики изделия:
ПараметрЗначение
длина11100 мм
ширина335 мм
высота335 мм
масса880 кг
нормативный документСерия 3.501.1-145

С 11.1   Стойки железобетонные Серия 3.501.1-145.