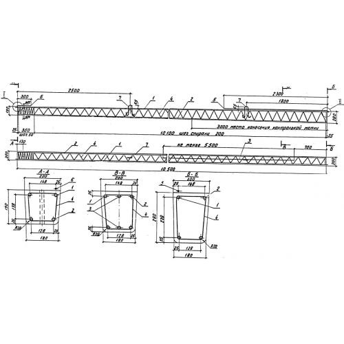
СВ 105
Характеристики изделия:
| Параметр | Значение |
|---|---|
| длина | 10500 мм |
| ширина | 200 мм |
| высота | 280 мм |
| масса | 1180 кг |
| нормативный документ | Серия 3.407.1-136 |
Цена:
Рассчитать стоимостьСВ 105 Стойки вибрированные железобетонные для опор ЛЭП, Серия 3.407.1-136.
| Параметр | Значение |
|---|---|
| длина | 10500 мм |
| ширина | 200 мм |
| высота | 280 мм |
| масса | 1180 кг |
| нормативный документ | Серия 3.407.1-136 |
СВ 105 Стойки вибрированные железобетонные для опор ЛЭП, Серия 3.407.1-136.
