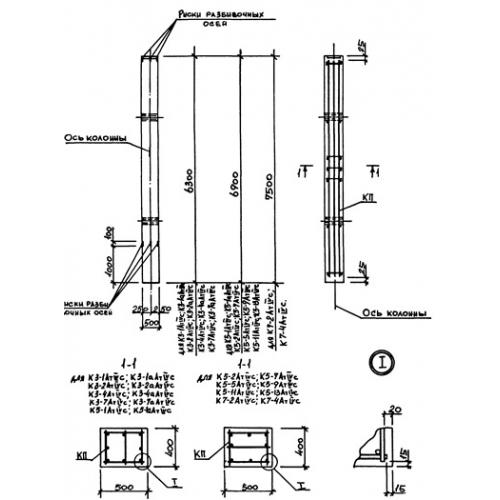
К 8

Чертеж изделия:
Характеристики изделия:
ПараметрЗначение
длина7500 мм
ширина500 мм
высота400 мм
масса3800 кг
нормативный документСерия 3.015-3/92

К 8  Колонны Серия 3.015-3/92.