К 21
Характеристики изделия:
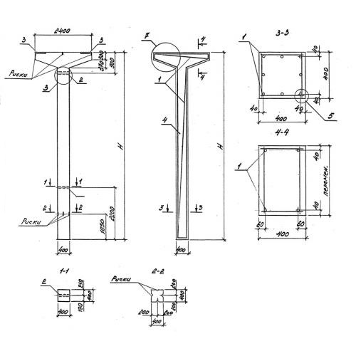
| Параметр | Значение |
|---|---|
| длина | 8000 мм |
| ширина | 2400 мм |
| высота | 2400 мм |
| масса | 4200 кг |
| нормативный документ | Серия 3.015-16.94 |
Цена:
Рассчитать стоимостьК 21 Колонны бетонные Серия 3.015-16.94.
| Параметр | Значение |
|---|---|
| длина | 8000 мм |
| ширина | 2400 мм |
| высота | 2400 мм |
| масса | 4200 кг |
| нормативный документ | Серия 3.015-16.94 |
К 21 Колонны бетонные Серия 3.015-16.94.
