ЛК 75.210.120 лотки

Чертеж изделия:
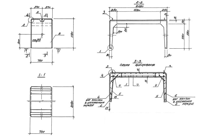
Характеристики изделия:
ПараметрЗначение
длина740 мм
ширина2080 мм
высота1180 мм
масса1030 кг
нормативный документСерия 3.006.1-8

ЛК 75.210.120  Лотки каналов Серия 3.006.1-8.