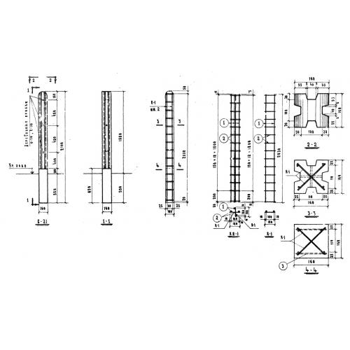
С-21

Чертеж изделия:
Характеристики изделия:
ПараметрЗначение
длина2100 мм
ширина160 мм
высота160 мм
вес115 кг
серия2.800-2

С-21 Стойки железобетонные с крестообразным поперечным сечением по серии 2.800-2.