Р 3

Чертеж изделия:
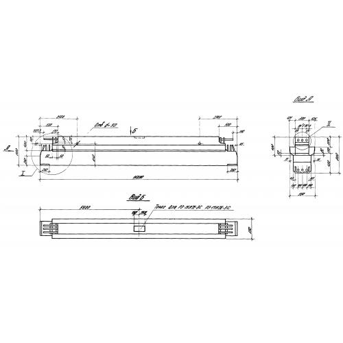
Характеристики изделия:
ПараметрЗначение
длина11200 мм
ширина550 мм
высота800 мм
масса8500 кг
нормативный документСерия 1.420.1-20с

Р 3 Ригели Серия 1.420.1-20с.