ВК 11.10
Характеристики изделия:
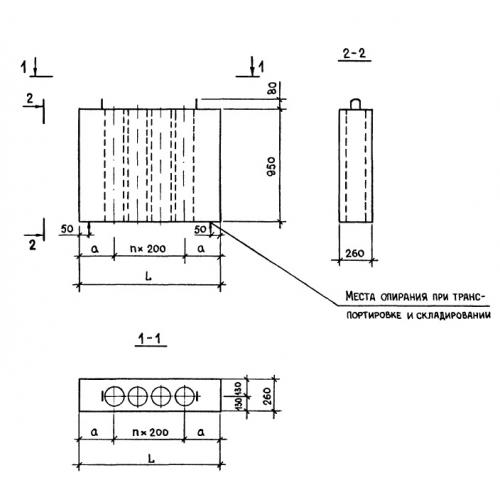
| Параметр | Значение |
|---|---|
| длина | 1080 мм |
| ширина | 260 мм |
| высота | 950 мм |
| вес | 253 кг |
| серия | 1.234.8-1 |
Цена:
Рассчитать стоимостьВК 11.10 Вентиляционные блоки крышные по серии 1.234.8-1.
| Параметр | Значение |
|---|---|
| длина | 1080 мм |
| ширина | 260 мм |
| высота | 950 мм |
| вес | 253 кг |
| серия | 1.234.8-1 |
ВК 11.10 Вентиляционные блоки крышные по серии 1.234.8-1.
