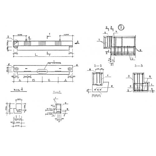
РОС 4.54

Чертеж изделия:
Характеристики изделия:
ПараметрЗначение
длина5410 мм
ширина375 мм
высота450 мм
вес1850 кг
серия1.220.1-2

РОС 4.54 Ригели покрытий по серии 1.220.1-2.