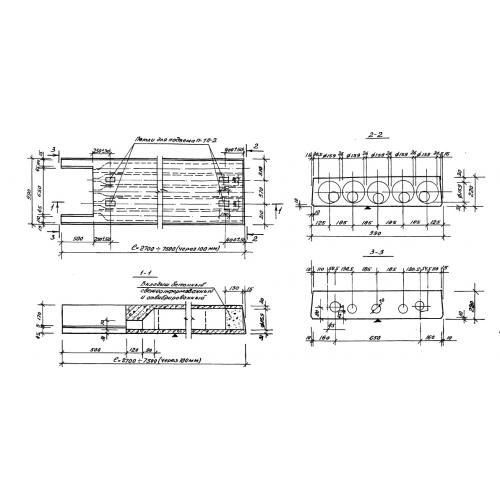
КНК 49.10

Чертеж изделия:
Характеристики изделия:
ПараметрЗначение
длина4900 мм
ширина990 мм
высота220 мм
вес1403 кг
серия1.141.1 КР-3

КНК 49.10 Панели с круглыми пустотами с консольными выпускными ребрами по серии 1.141.1 КР-3.