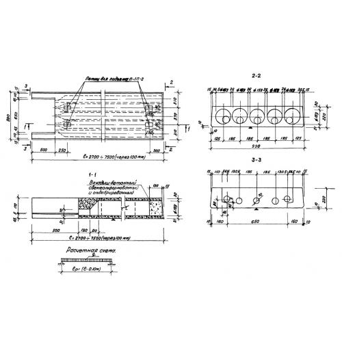
КНК 42.10

Чертеж изделия:
Характеристики изделия:
ПараметрЗначение
длина4200 мм
ширина990 мм
высота220 мм
вес1175 кг
серия1.141 КР-1

КНК 42.10 Панель с консольными выпускными ребрами. Панели перекрытия многопустотные по серии 1.141 КР-1.