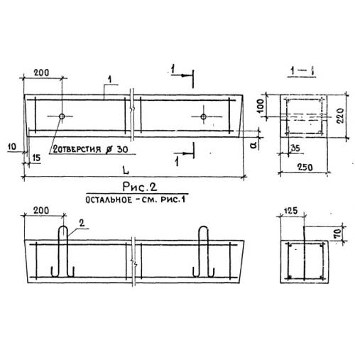
БУ 27

Чертеж изделия:
Характеристики изделия:
ПараметрЗначение
длина2700 мм
ширина250 мм
высота220 мм
вес370 кг
серия1.139-1

БУ 27 Перемычки брусковые усиленные по серии 1.139-1.