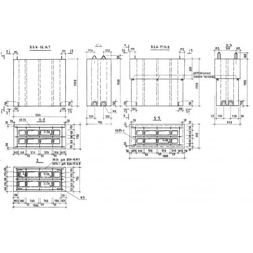
ВБН 16.14.7

Чертеж изделия:
Характеристики изделия:
ПараметрЗначение
длина1560 мм
ширина720  мм
высота1350 мм
вес1480 кг
серия1.134-3

ВБН 16.14.7 Наружные вентиляционные блоки по серии 1.134-3.