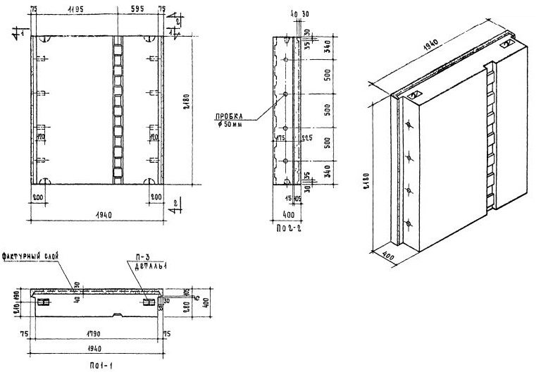
НБ-18.22.4-5

Чертеж изделия:
Характеристики изделия:
ПараметрЗначение
Длина1940 мм
Ширина400 мм
Высота2180 мм
Масса3105 кг
Нормативный документСерия 1.133-1

Стеновые легкобетонные блоки толщиной 40 см по Серии 1.133-1.

НБ-18.22.4-5  Простеночный блок.