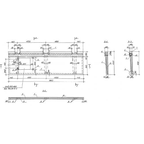
ПБК 39.12

Чертеж изделия:
Характеристики изделия:
ПараметрЗначение
длина3820 мм
ширина1230 мм
высота100 мм
вес1130 мм
серия1.100.1-7

ПБК 39.12 Плиты балконные плоские сплошные консольные по серии 1.100.1-7.