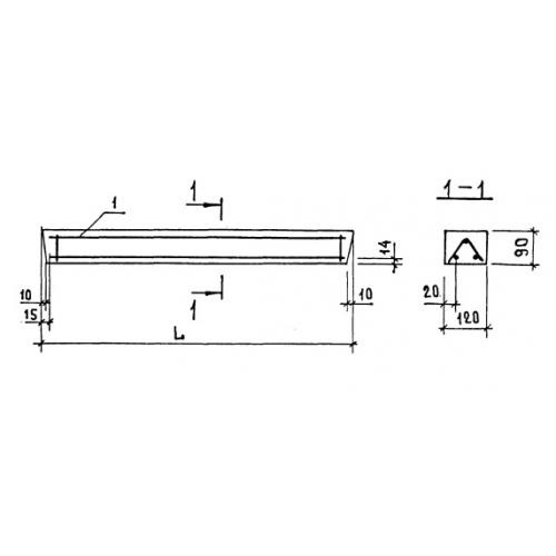
8ПБ 19 перемычки брусковые

Чертеж изделия:
Характеристики изделия:
ПараметрЗначение
длина1940 мм
ширина120 мм
высота90 мм
масса52 кг
нормативный документСерия 1.038.1-1

8ПБ 19  Перемычки брусковые Серия 1.038.1-1.