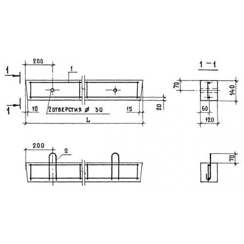
2ПБ 10 перемычки брусковые

Чертеж изделия:
Характеристики изделия:
ПараметрЗначение
длина1030 мм
ширина120 мм
высота140 мм
масса42,5 кг
нормативный документСерия 1.038.1-1

2ПБ 10  Перемычки брусковые Серия 1.038.1-1.