Р 6

Чертеж изделия:
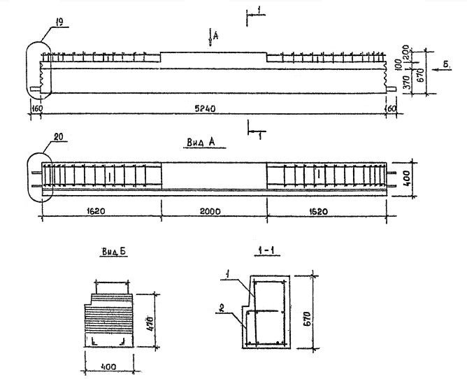
Характеристики изделия:
ПараметрЗначение
длина5560 мм
ширина400 мм
высота670 мм
масса2800 кг
нормативный документСерия 1.020.1-2с/89

Р 6   Ригели Серия 1.020.1-2с/89.