1Р 6

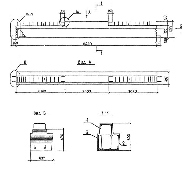
Чертеж изделия:
Характеристики изделия:
ПараметрЗначение
длина6760 мм
ширина497 мм
высота600 мм
масса3500 кг
нормативный документСерия 1.020.1-2с/89

1Р6  Ригели для одностороннего опирания плит Серия 1.020.1-2с/89.